
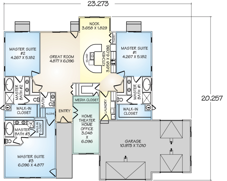
The Montecito panelized kit home is a modern design with multiple master suites branching away from a central dining and entertainment area. Each suite contains a full bath, with generous storage space provided by a walk-in closet. Ten-foot volume ceilings allow a more open feel throughout the house. The plan includes a closed-off media room with a separate closet for wiring and hardware accessibility. The expanded garage features a drive-through and room for multiple vehicles.

