
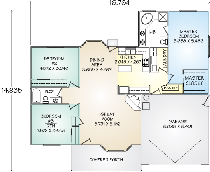
The Plymouth panelized kit home has been thoughtfully designed with an eye toward comfort. Located a few steps from the entryway, the great room provides a welcoming and convenient venue for entertaining. Another feature of this plan is that the family bedrooms are on the opposite side of the house from the master bedroom, creating a wonderful retreat environment. The master bedroom suite also offers a generously-sized master bath and walk-in closet.

