(530)941-2100

Portola

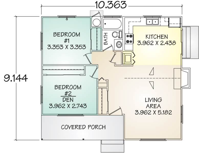
This plan is designed to be the perfect cabin for those weekend or vacation retreats. Unlike many small homes, the Portola panelized kit home provides interior space for all utilities, including a stacked clothes washer and dryer. The living, dining, and kitchen areas feature a vaulted ceiling and an alcove for a wood stove.

  • Total Liv.: 900 ft² (84 m²)
  • Front End URL: https://habitatspackagedhomes.com/floorplans/small-prefab-1-story-homes/item/3-portola.html
  • Bedrooms: 2
  • Bathrooms: 1
  • Garage: N/A
  • Ceiling Height: 8’
  • Covered Porch: 118 ft² (11 m²)
  • Home Plan Cost: Included (October 2025)
  • Building Kit Cost: $55,456 (October 2025)
  • Style: 1 Story
  • Minimum Payment: $3,800
  • 1) Complete set of plans drawn to the California Building Code (CBC), as interpreted by Elk Grove, CA excluding Plot Plan and Energy Calculations. (Other States are available additional costs may apply)
  • 2) Plans are engineered for light-weight tile and no snow and/or maximum of 85 mph wind. Exposure "C" and/or Seismic Zone D. Greater design loads by quote only.
  • 3) 4 sets of plans, including 3 original engineered stamped sets and 1 copy.
  • 4) Truss Calculations.
  • 5) Plan changes due to California Fire Hazard Severity Zone add $180 to Base Plan Set price.
  • 6) Plan engineering costs may increase subject to local building ordinance.
  • 7) Home Plans are only sold as part of our building system.
What's Included Complete Price List
Free Plan Review Set
Download a Free Plan Review Set

After you complete the Free Plan Review set request form we'll send you an electronic version of a fully dimensioned floor plan and all 4 exterior elevations by e-mail. In addition to viewing it on your computer you are welcome to have a local print service print the pages out full sized (commonly 2' X 36') to help with the following:

Interior & Exterior Space Planning
Measure for furniture placement and even stake out the
building footprint for the ideal placement on your building site.

All Four Exterior Elevations
See what all four sides of the building looks like.

Building Cost Estimates
With our fully dimensioned plan you can get much of your interior finish
picked out and arrive at an anticipated budget for these items.

More Information
Download Hi-Resolution Floor Plan View Metric Floor Plan Construction Cost Estimate Modify This Plan

Media

More in this style: « Sonoma Lake View »